Inicio
Nosotros
Proyectos
Desarrollos
Contacto
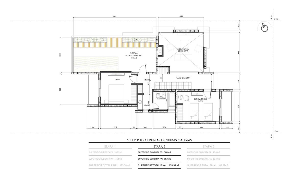
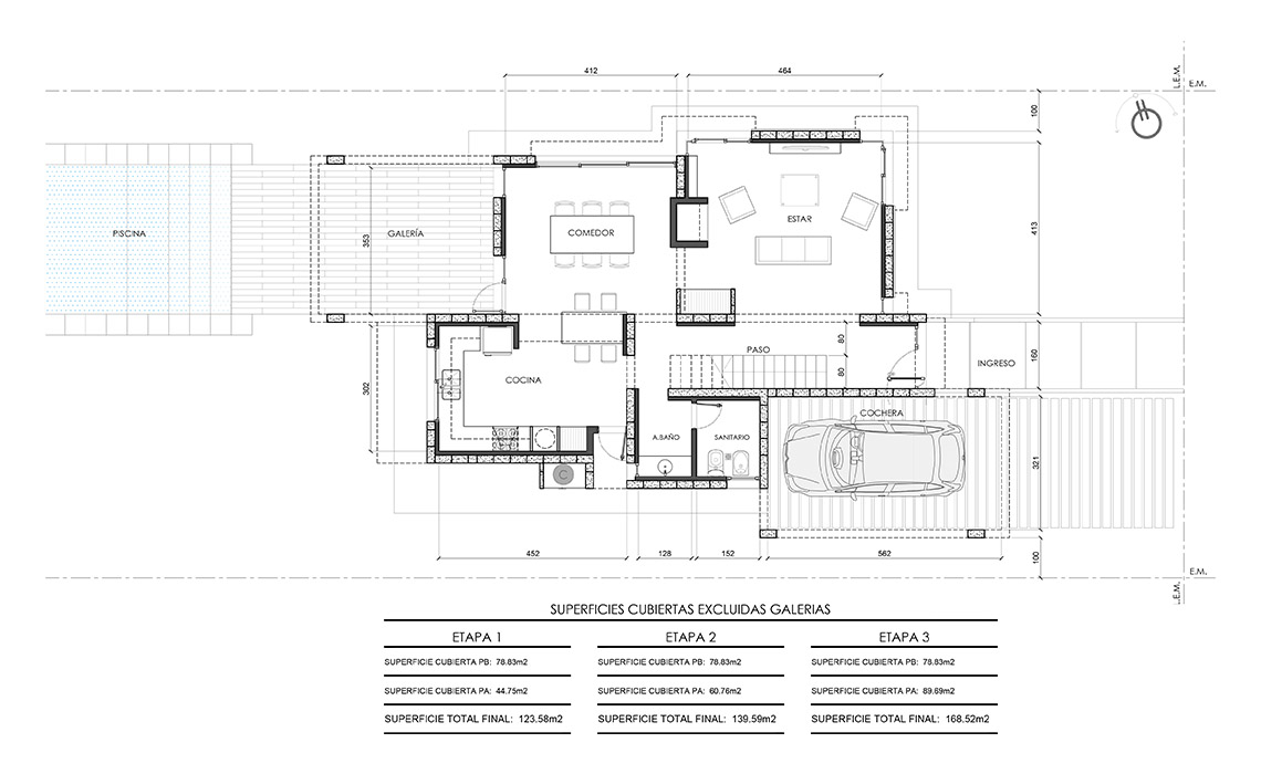
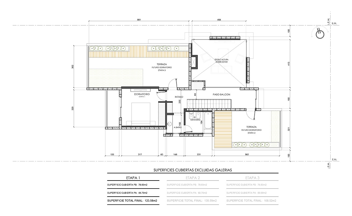
Casa en Roldán
-
Ir al inicio
Volver a Proyectos
Planimetría