Inicio
Nosotros
Proyectos
Desarrollos
Contacto
Casa Luis Palacios
-
Ir al inicio
Volver a Proyectos
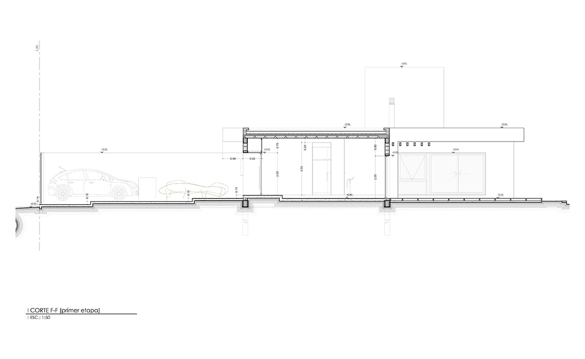
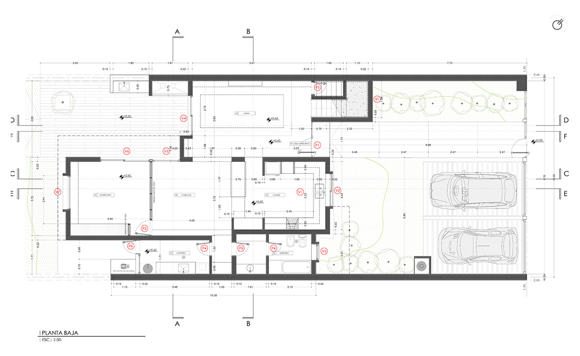
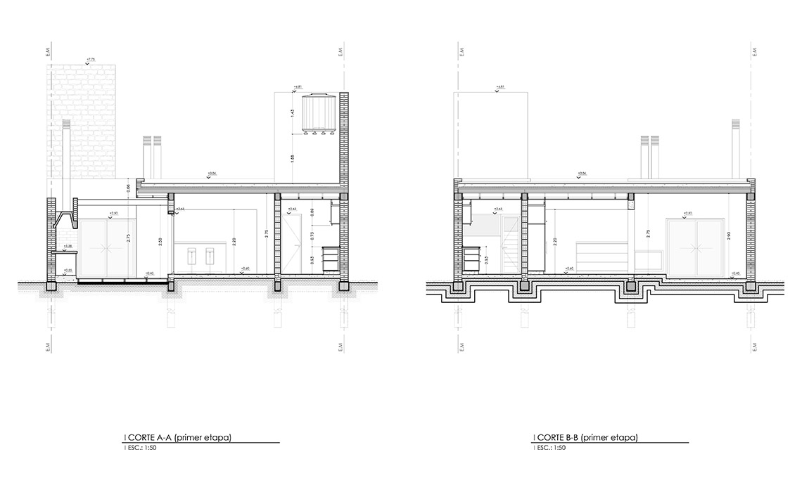
Planimetría