Inicio
Nosotros
Proyectos
Desarrollos
Contacto
Fenix 04
Edificio
Ir al inicio
Volver a Proyectos
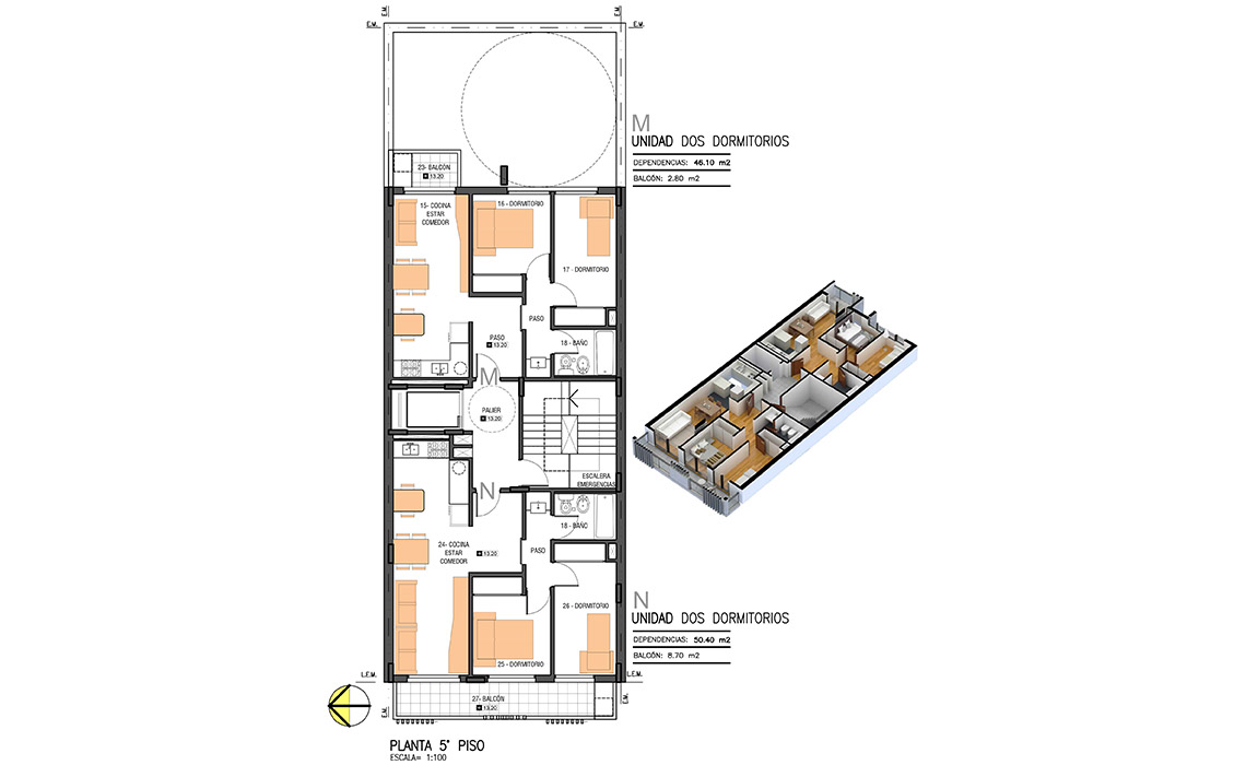
Planimetría