Inicio
Nosotros
Proyectos
Desarrollos
Contacto
Fenix 05
Edificio
Ir al inicio
Volver a Proyectos
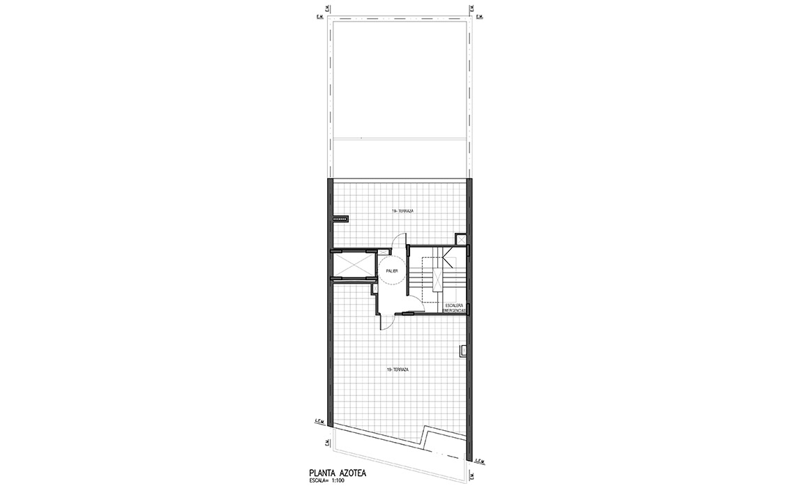
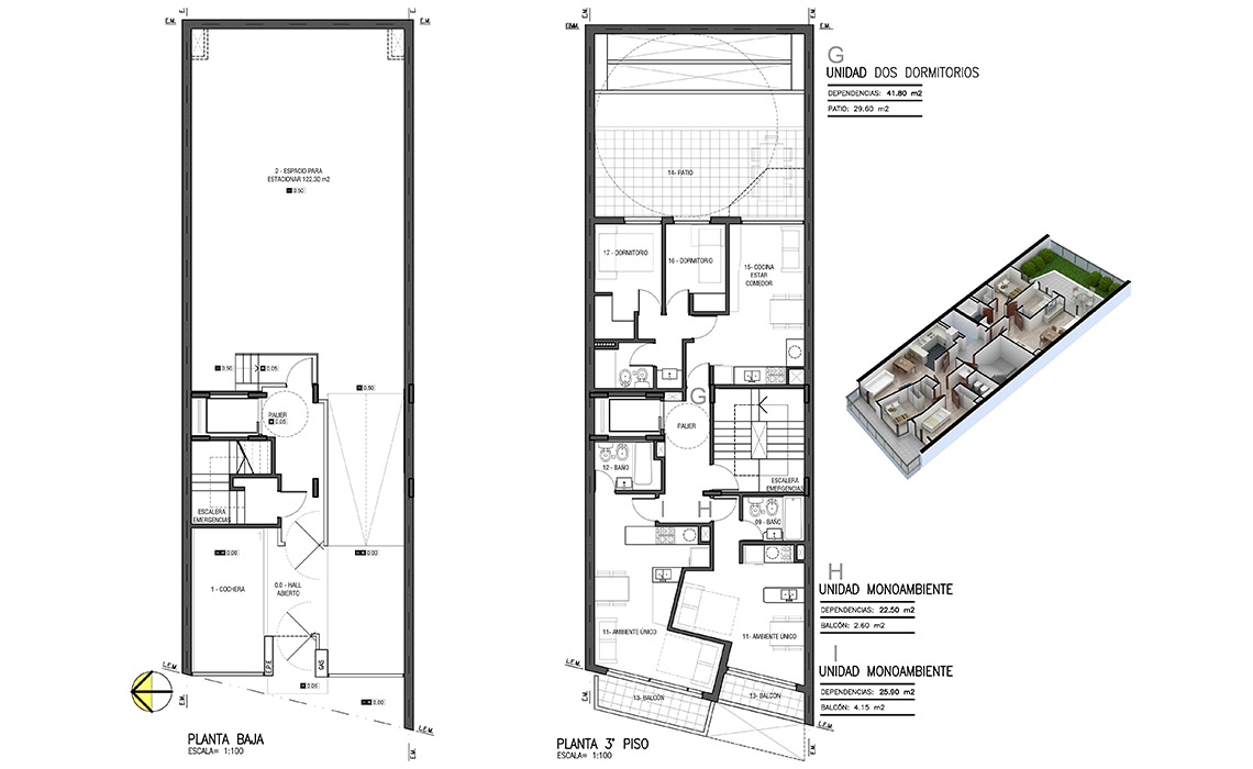
Planimetría